Property Features:
This fantastic property offers a rare opportunity to secure a prime piece of real estate in the heart of Bendigo with the potential for both residential and commercial use. Situated on a large 2748m² allotment, the property features a beautifully renovated 3-bedroom home with a study, providing comfortable living in a peaceful setting.
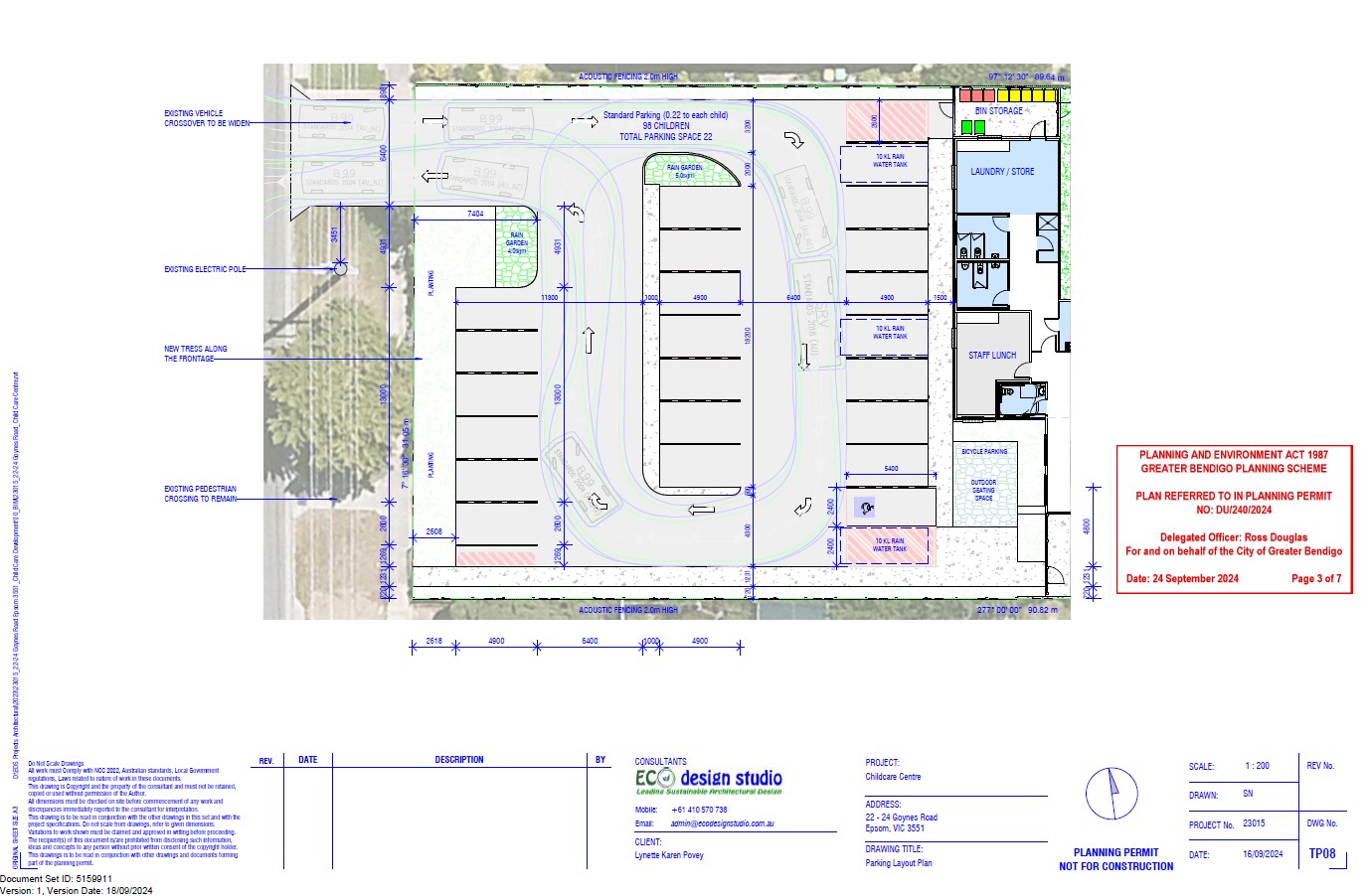
What makes this property even more appealing is the approved planning permit for a Child Care Centre, making it a perfect investment opportunity for developers or entrepreneurs looking to capitalise on the demand for quality childcare services. The plans for the proposed centre are included with the sale, providing a ready-to-go project with significant upside.
Key Features:
• Renovated Home: Modern 3-bedroom house with a study and central bathroom, ideal for comfortable living or rental income.
• Large Land: Sprawling 2748m² allotment with potential for future development.
• Child Care Centre Plans: Approved planning permit to build a Child Care Centre, a high-demand service in this growing area.
• Strategic Location:
o Shops: Just a short drive to local shops for convenience.
o Primary School: Within easy reach, perfect for family-friendly living.
o Train Station: A short distance to Bendigo's train station for easy commutes.
o Bus Stop: Located right on the same road, enhancing transport options.
o Bendigo City Centre: Just minutes from the vibrant heart of Bendigo, offering all amenities and attractions.
Income Potential: While you develop the childcare centre, you can generate rental income from the renovated home, providing cash flow until your project is ready to go. This combination of income-generating property and future development opportunities is a rare find in Bendigo.
Government Incentives: Take advantage of government incentives.
This property is ideal for investors, developers, or those looking to live in a quiet, family-friendly area while pursuing a business venture. With the growing demand for childcare services and the prime location, this property is poised for strong future growth.
Contact:
For more information or to schedule a viewing, contact Mick Stewart from Links8 Real Estate at 0437 794 049 or [email protected]
Don't miss out on this exceptional opportunity!
Features
- Air Conditioning
- Gas Heating
- Split-System Air Conditioning
- Split-System Heating
- Fully Fenced
- Secure Parking
- Shed
- Built-in Wardrobes
- Study
- Workshop
- Solar Panels

































